...

Osiedle SŁoneczne

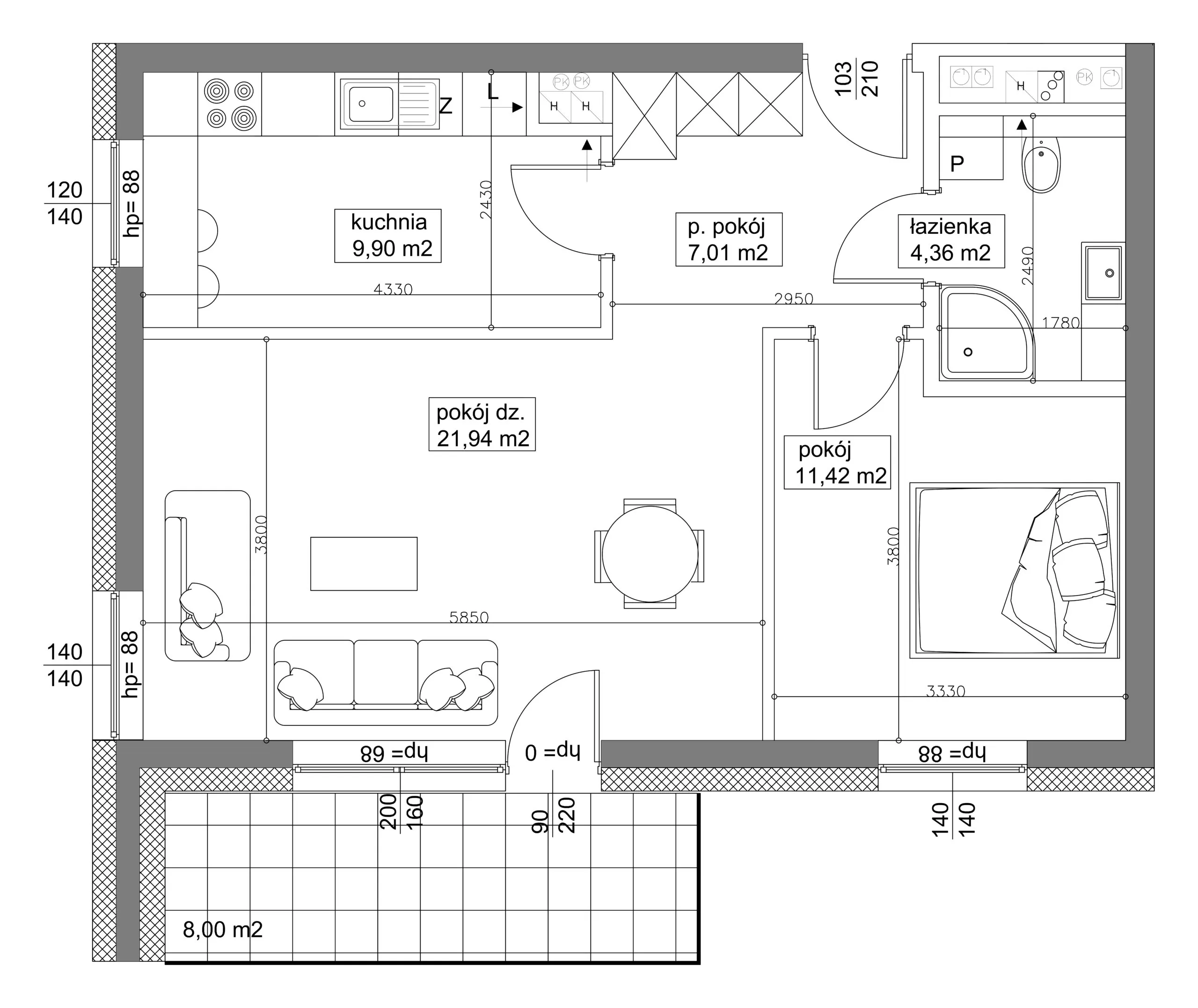
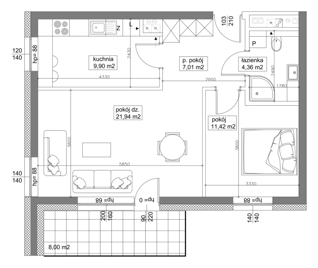
Mieszkanie 13

SPRZEDANE
Etap 01
Mieszkanie  13
Cena mieszkania 473535
Cena za m² 8500

  • 02.12.2025 7900

Klatka

A

Metraż

55.71

Ilość pokoi

2

Piętro

1

Kuchnia

osobna

Balkon

8.25

Informacje dodatkowe

Miejsce postojowe w hali garażowej 40 000 PLN
Miejsce parkingowe zewnętrzne niedostępne
Komórka lokatorskaniedostępne

Pliki do pobrania

Przeglądaj dostępne miejsca postojowe i komórki lokatorskie

Opiekun oferty

Maciej Gadaszewski

+48 607 822 295

m.gadaszewski@pwlech.com.pl

Interesuje Cię to mieszkanie? Napisz do nas!


Seraphinite AcceleratorOptimized by Seraphinite Accelerator
Turns on site high speed to be attractive for people and search engines.