...

Osiedle SŁoneczne

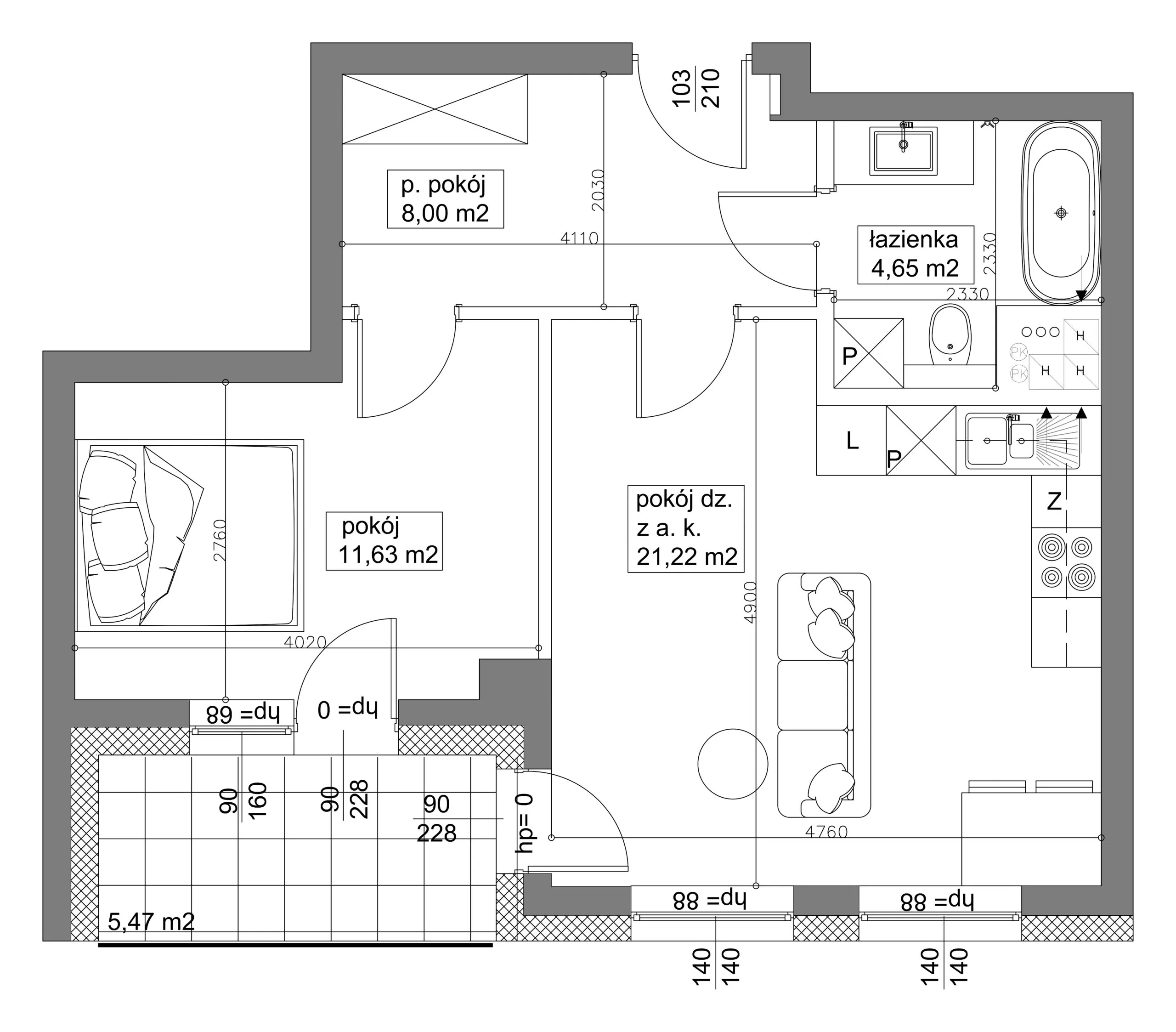
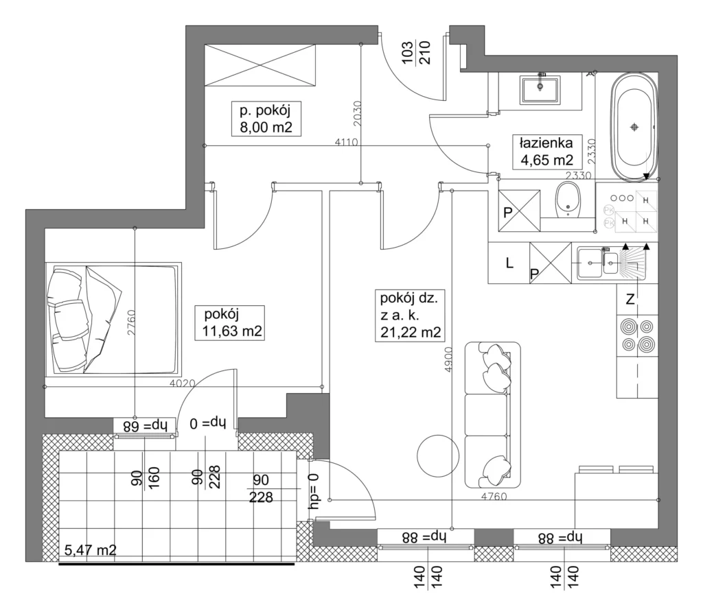
Mieszkanie 49

SPRZEDANE
Etap 01
Mieszkanie  49
Cena mieszkania 392275
Cena za m² 8500

02.12.2025 7900

Klatka

B

Metraż

46.15

Ilość pokoi

2

Piętro

1

Kuchnia

aneks

Balkon

5.26

Informacje dodatkowe

Miejsce postojowe w hali garażowej 40 000 PLN
Miejsce parkingowe zewnętrzne niedostępne
Komórka lokatorskaniedostępne

Pliki do pobrania

Przeglądaj dostępne miejsca postojowe i komórki lokatorskie

Opiekun oferty

Maciej Gadaszewski

+48 607 822 295

m.gadaszewski@pwlech.com.pl

Interesuje Cię to mieszkanie? Napisz do nas!


Seraphinite AcceleratorOptimized by Seraphinite Accelerator
Turns on site high speed to be attractive for people and search engines.