...

Osiedle SŁoneczne

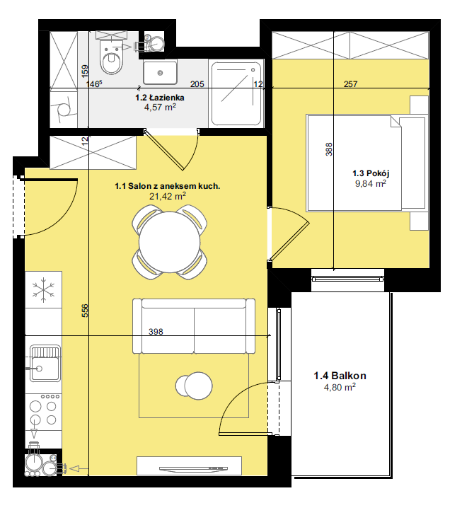
Mieszkanie 12

WOLNE
Etap 01
Mieszkanie  12
Cena mieszkania 322803
Cena za m² 8900

Klatka

A

Metraż

36.27

Ilość pokoi

2

Piętro

2

Kuchnia

aneks

Balkon

4.80

Informacje dodatkowe

Miejsce postojowe w hali garażowej 40 000 PLN
Miejsce parkingowe zewnętrzne niedostępne
Komórka lokatorskaniedostępne

Pliki do pobrania

Przeglądaj dostępne miejsca postojowe i komórki lokatorskie

Opiekun oferty

Maciej Gadaszewski

+48 607 822 295

m.gadaszewski@pwlech.com.pl

Interesuje Cię to mieszkanie? Napisz do nas!


Seraphinite AcceleratorOptimized by Seraphinite Accelerator
Turns on site high speed to be attractive for people and search engines.